Product Code CC 0025 [ After payment, this Code helps to receive correct download password to your Account Dashboard ]
Package Include
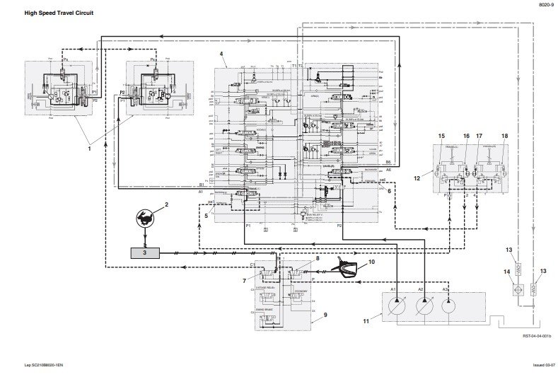
Case CX210B, CX230B, CX240B Excavator Service Repair Manual
Language
English
Format
PDF
Total Number of pages
1-967
Publication Number
Lep 7-27691EN – Issued 02-06
Compatible
All windows and mac systems
Additional Requirement
User needs to Install PDF Reader Software
Shipping Policy
Download link by high speed web server Total Download size 105 mb
With This Original Factory Service Repair Manual The Technician can Find and Solve any problems encountered in the operation of your Case Excavator Models of :
CX210B, CX230B, CX240B
This Service Manual very clear, This is True Electronic pdf copy, not scanned version, contains high quality images and it is 100% printable version
[the_ad id=”18420″]
DOWNLOAD SAMPLE OF THIS PDF MANUAL










